Pristatome naują trijų šiuolaikinio stiliaus vilų su vaizdu į jūrą projektą, esantį Finestrato savivaldybėje (Alikantė), kalnuoto kraštovaizdžio apsuptyje ir vos 5 minutės kelio automobiliu nuo Benidormo.
Visuose namuose naudojamos kokybiškos medžiagos ir išskirtinio dizaino dangos. Interjeras jaučiasi erdvus dėl aukštų lubų ir didelių langų, nukr...eiptų į jūrą. Grindų aukštis 2,80 m, hole ir svetainėje yra dvigubo aukščio erdvės.
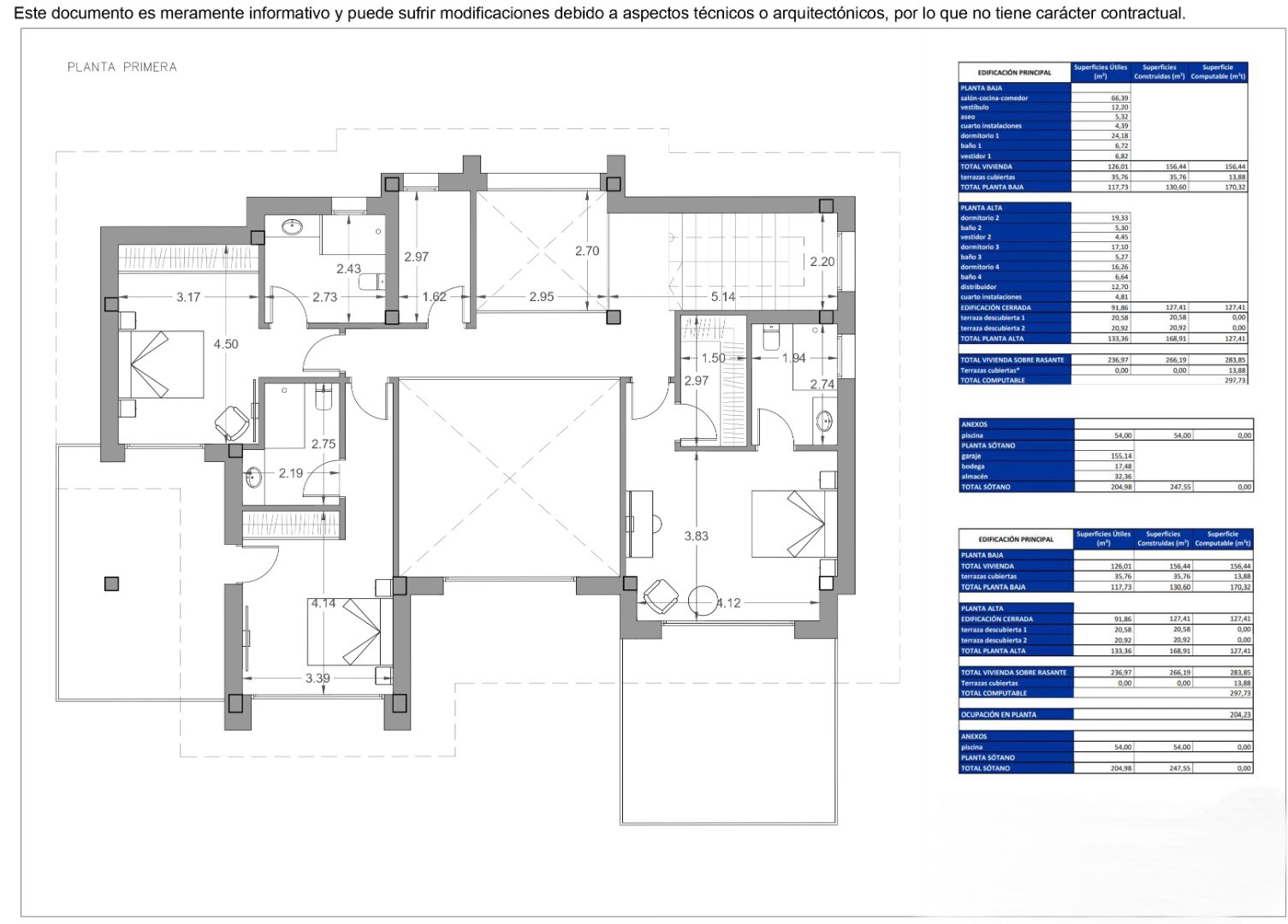
Kiekvienos vilos užstatytas plotas viršija 550 m², o sklypo plotas apie 900 m². Kiekvieno namo dviejuose viršutiniuose aukštuose yra 300 m² ploto ir papildomas 200 m² pusrūsio aukštas, naudojamas kaip garažas.
Vilose yra 4 miegamieji, 5 vonios kambariai, 2 skalbyklos ir atviro išplanavimo svetainė-valgomasis-virtuvės zona. Lauke yra dengta veranda, baseinas su vaizdu į jūrą, didelės sodo zonos ir dvi terasos pirmame aukšte.
Visi įrenginiai yra labai efektyvūs. Namo energetinis efektyvumas labai aukštas. Fasadas pagamintas iš Ytong blokelių. Medžio dirbiniai ir stiklas turi mažą šilumos laidumą. Ortakinėje oro kondicionavimo sistemoje yra šilumos siurblys, grindinis šildymas visame name, vėdinimo sistema su oro atnaujinimu, šilumos rekuperacinė sistema. Visame name yra LED apšvietimas, tiek viduje, tiek išorėje.
Be to, būsimas savininkas savo namus gali individualizuoti papildomais patogumais.