Parduodamas ublokuotas namas Gran Alacant mieste už 280 000 € (AL04)

Vieno aukšto vasarnamiai su 1, 2 arba 3 miegamaisiais, su 1 arba 2 vonios kambariais. Pasirinkite geriausią savo namų išdėstymą ir pritaikykite jį savo šeimai. Bendruomenės baseinas ir beveik visos paslaugos.

280.000 €
Ref. AL04
Gran Alacant, Alicante Peržiūrėti žemėlapį

Pagrindinės funkcijos

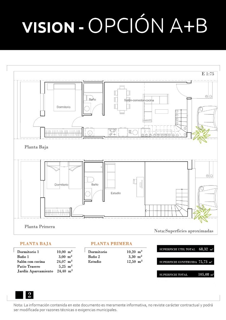
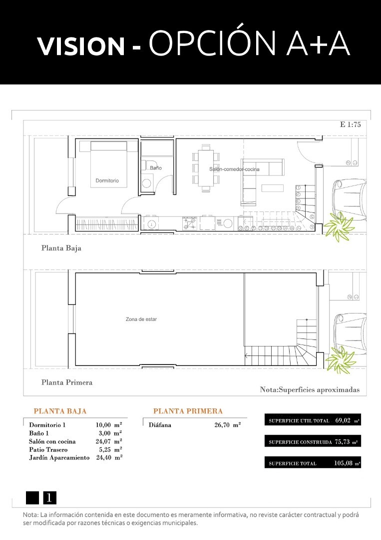
m<sup>2</sup> namas
75 m2 namas
Miegamieji
2 Miegamieji
Vonios kambariai
1 Vonios kambariai
Atstumas iki jūros
Pliažas už 3 km
Bendruomenės baseinas
Sodas
Spintos
Dvigubi langai

Aprašymas

Norite gauti daugiau informacijos? Mažiau informacijos
Mes pristatome jums namą viename iš geriausių Kosta Blankos rajonų. Visai šalia Alikantės ir jos oro uosto, mėlynos vėliavos paplūdimio, prekybos centrų, barų, restoranų ir dar daugybės kitų dalykų! Skirtingos interjero paskirstymo galimybės suteikia daug galimybių patenkinti bet kokių skirtingų ir skirtingų šeimų poreikius. Su jaukia komunaline zo...

Vieta

Gran Alacant, Alicante
Susidomėjote šiuo nekilnojamuoju turtu ir norite gauti daugiau informacijos?

Paskolos įmokų skaičiuoklė

Likusi kaina nefinansuojama
00,00 €
Apytikslės išlaidos:
00,00 €
Iš viso nuosavų lėšų
00,00 €
Paskolos palūkanų normos
€/mes
Norite gauti daugiau informacijos?
Šį nekilnojamąjį turtą žiūri 17 žmonių