Parduodama vila Villajoyosa mieste (VILL10005)

Parduota

Naujas pastatas su privačiu baseinu Villajoyosa

Ref. VILL10005
Villajoyosa, Alicante Peržiūrėti žemėlapį

Pagrindinės funkcijos

m<sup>2</sup> sklypas
400 m2 sklypas
m<sup>2</sup> namas
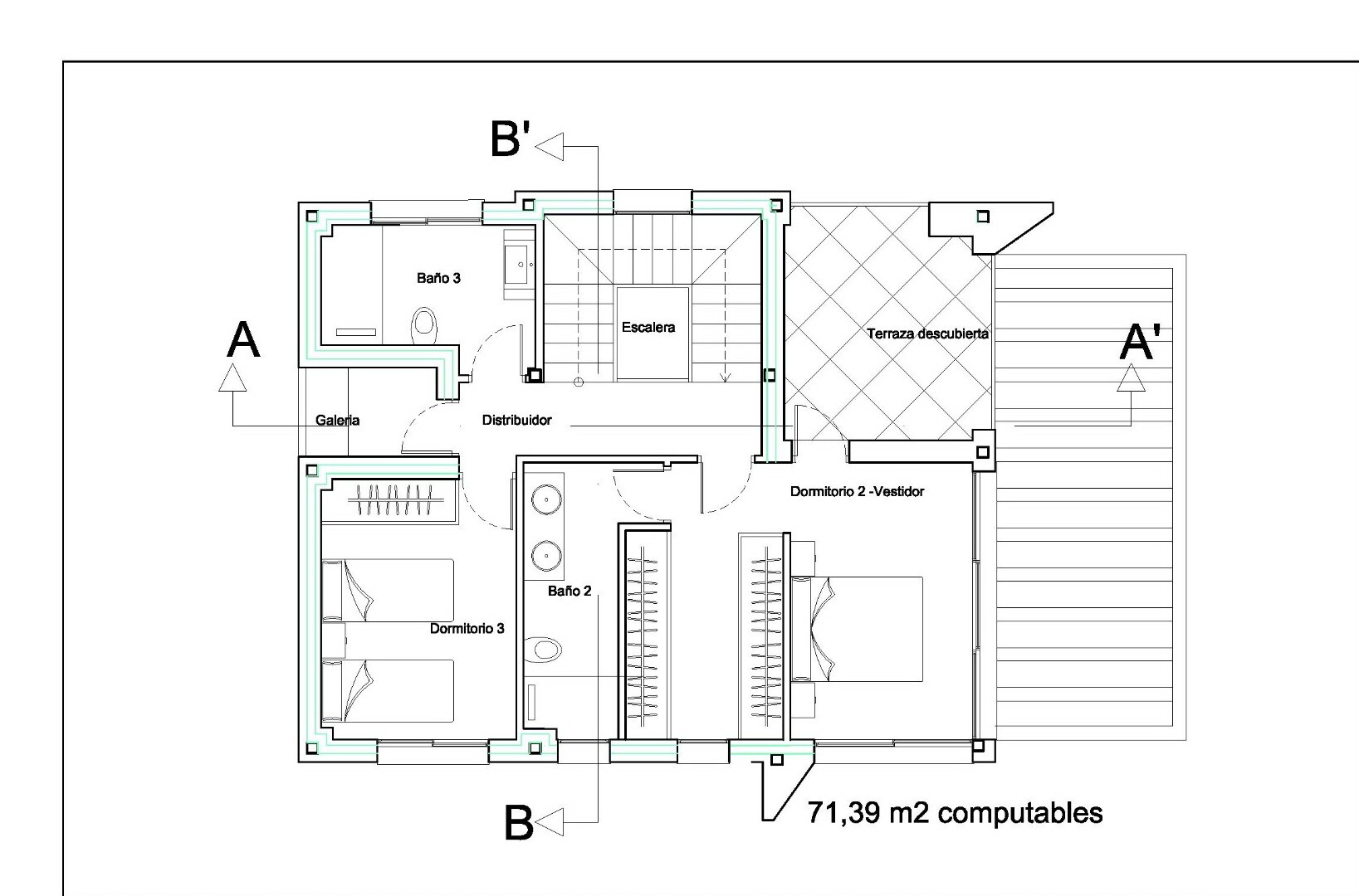
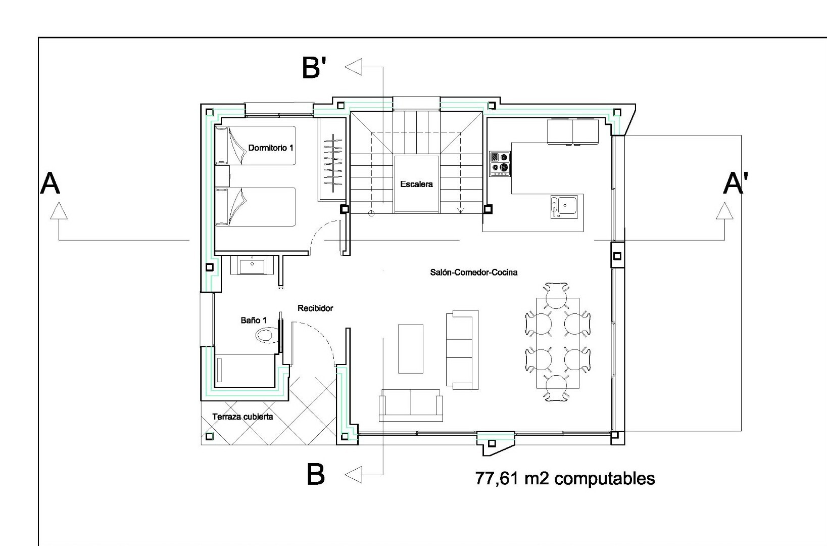
150 m2 namas
Miegamieji
3 Miegamieji
Vonios kambariai
3 Vonios kambariai
Atstumas iki jūros
Pliažas už 300 m
Privatus baseinas
Sodas
Skalbykla / Sandėliukas
Buitinė technika
Oro kondicionierius
Šildymas
Spintos
Dvigubi langai

Aprašymas

Naujos statybos projektas iš 3 modernių vilų su privačiais baseinais ir automobilių stovėjimo aikštele! 3 miegamieji, 3 vonios kambariai, baseinas, didelė terasa prie baseino ir soliariumas. Raktas paruoštas 15 mėnesių po pirkimo-pardavimo sutarties pasirašymo.

Vieta

Villajoyosa, Alicante
Susidomėjote šiuo nekilnojamuoju turtu ir norite gauti daugiau informacijos?
Norite gauti daugiau informacijos?
Šį nekilnojamąjį turtą žiūri 3 žmonių