Pristatome „Villa Alba“ – išskirtinę šiuolaikinio dizaino vilą, esančią gyvenamųjų namų kvartale Alteoje, geidžiamoje Kosta Blankos šiaurinėje pakrantėje.
Sukurta išrankiems pirkėjams, vertinantiems modernią architektūrą, privatumą ir įspūdingus Viduržemio jūros vaizdus, ši elegantiška vila siūlo tobulą komforto, stiliaus ir funkcionalumo pusiaus...vyrą.
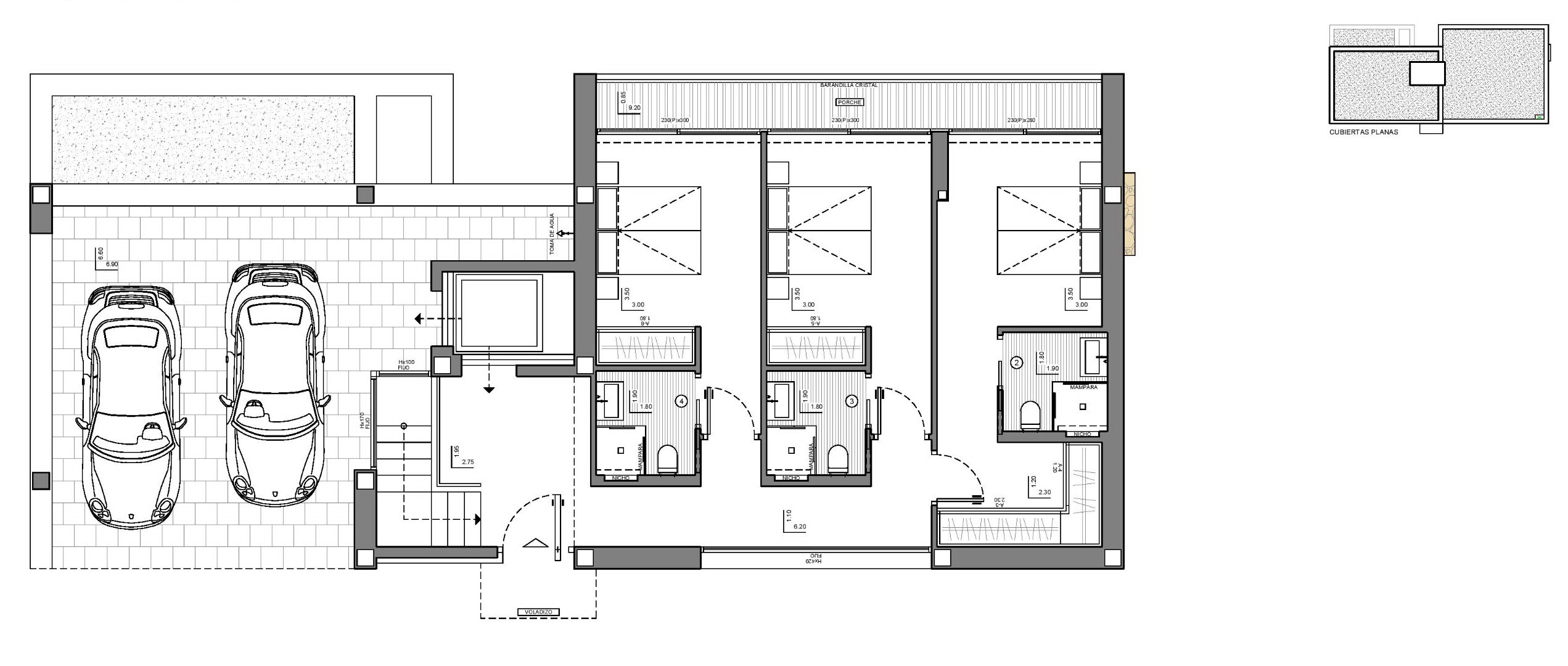
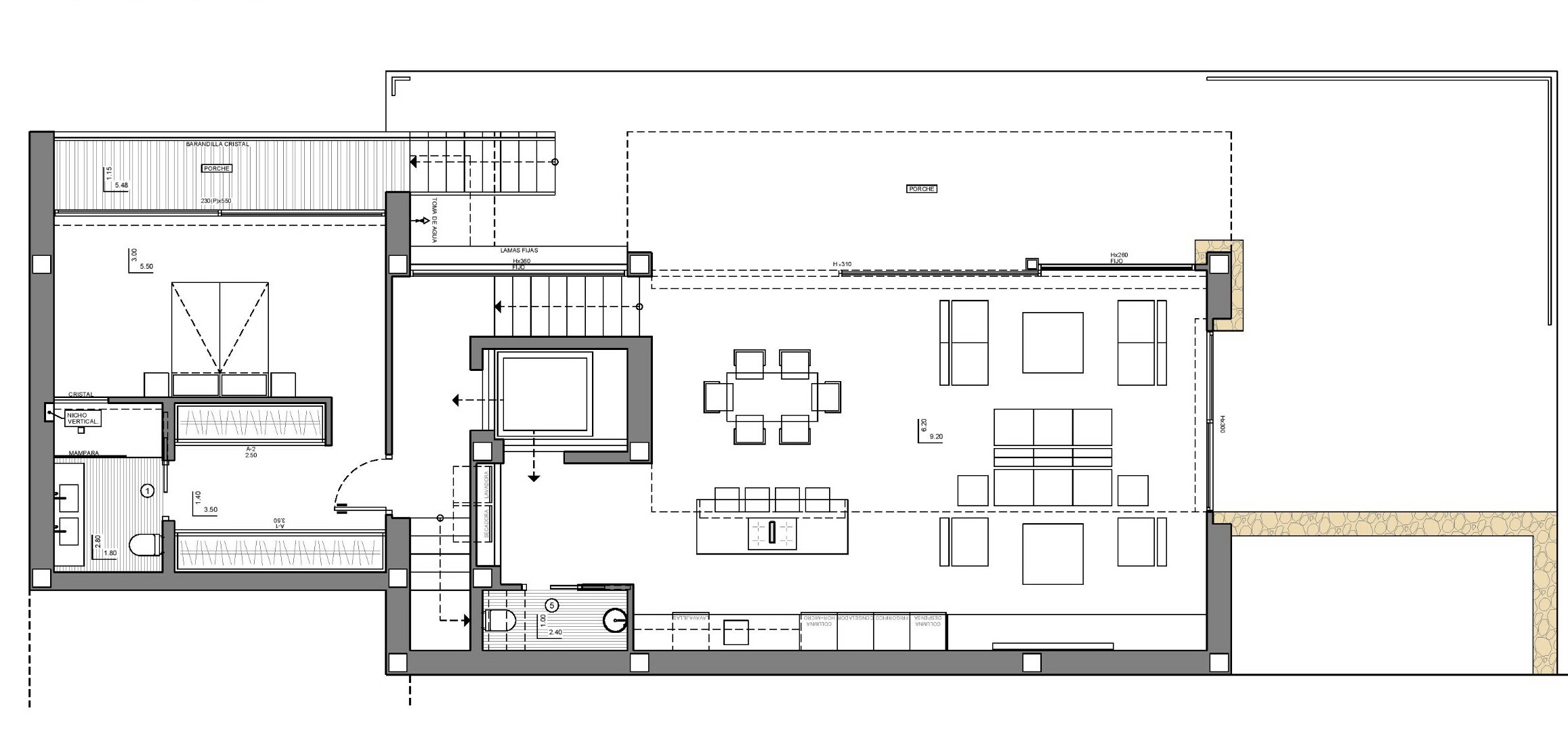
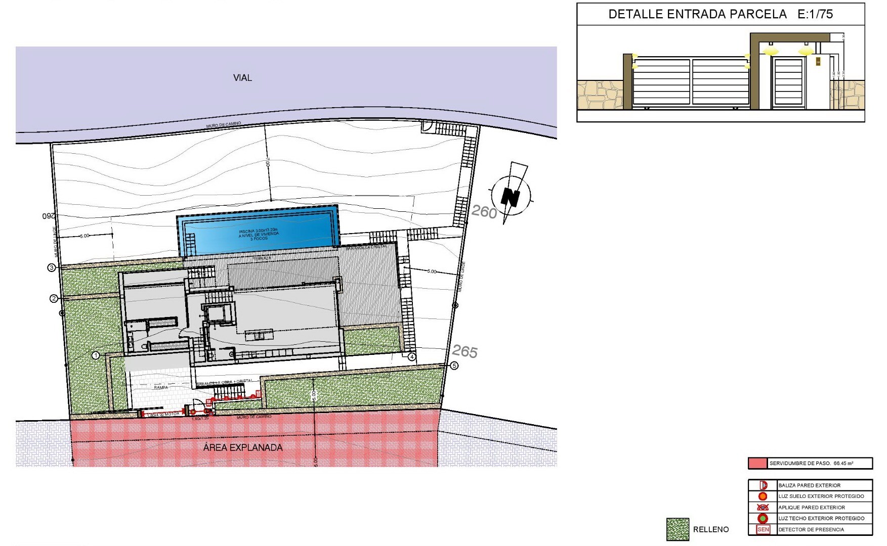
Vila yra išdėstyta per du kruopščiai suplanuotus aukštus ir joje yra keturi erdvūs miegamieji, kiekvienas su savo vonios kambariu, šviesi atviro plano svetainė ir valgomasis su pilnai integruota šiuolaikine virtuve bei nuostabi pagrindinė terasa su begalybės baseinu, sklandžiai derinančiu vidaus ir lauko gyvenamąsias erdves su panoraminiais jūros vaizdais.
Visos pagrindinės gyvenamosios erdvės yra orientuotos į pietryčius, į jūrą, ir turi tiesioginę prieigą prie lauko terasų, maksimaliai padidindamos natūralią šviesą ir susisiekimą su Viduržemio jūros aplinka.
Nuosavybėje taip pat yra dengtas garažas dviem automobiliams su paruošta elektromobilių įkrovimo stotele, kartu su aerotermine klimato kontrole, namų automatikos sistema ir saulės baterijomis, užtikrinančiomis aukštą energijos vartojimo efektyvumą, tvarumą ir komfortą ištisus metus.
Viduržemio jūros gyvenimo esmė
Altea yra vienas žaviausių Kosta Blankos miestelių, garsėjantis vaizdingu senamiesčiu su grįstomis gatvelėmis ir baltai nubalintais fasadais, iš kurių atsiveria vaizdas į Viduržemio jūrą.
Altea yra daugiau nei tik lankytina vieta – tai gyvenimo būdas. Čia gyventojai mėgaujasi unikaliu jūros, gamtos, gastronomijos ir kultūros deriniu.
Ikoniški balti namai ir tarptautiniu mastu pripažinta mėlyno kupolo bažnyčia – miesto simbolis – yra tik grožio, laukiančio už kiekvieno kampo, pradžia. Nuo ramių pasivaikščiojimų pakrante iki gyvybingų vietinių restoranų, meno galerijų ir tradicinių turgų – Altea siūlo autentišką Viduržemio jūros regiono patirtį ištisus metus.