Įsikūręs viename išskirtiniausių ir saugiausių Altea gyvenamųjų namų kompleksų, šis butas siūlo puikų erdvumo, šviesos ir elegancijos derinį privilegijuotoje gamtos apsuptyje. 125 m² gyvenamojo ploto butas turi svetainę-valgomąjį su židiniu, malonią terasą su atvirais vaizdais ir išplanavimą, užtikrinantį komfortą tiek kasdieniam gyvenimui, tiek at...ostogoms.
Įėjus jus pasitinka erdvi ir šviesi svetainė-valgomasis su įmontuotu židiniu, kuris suteikia šilumos ir rafinuotumo bei atsiveria tiesiai į terasą – idealią erdvę mėgautis Viduržemio jūros klimatu ištisus metus. Atskira virtuvė yra praktiška ir funkcionali, joje yra ūkinė patalpa, kurioje yra papildoma sandėliavimo ir darbo vieta.
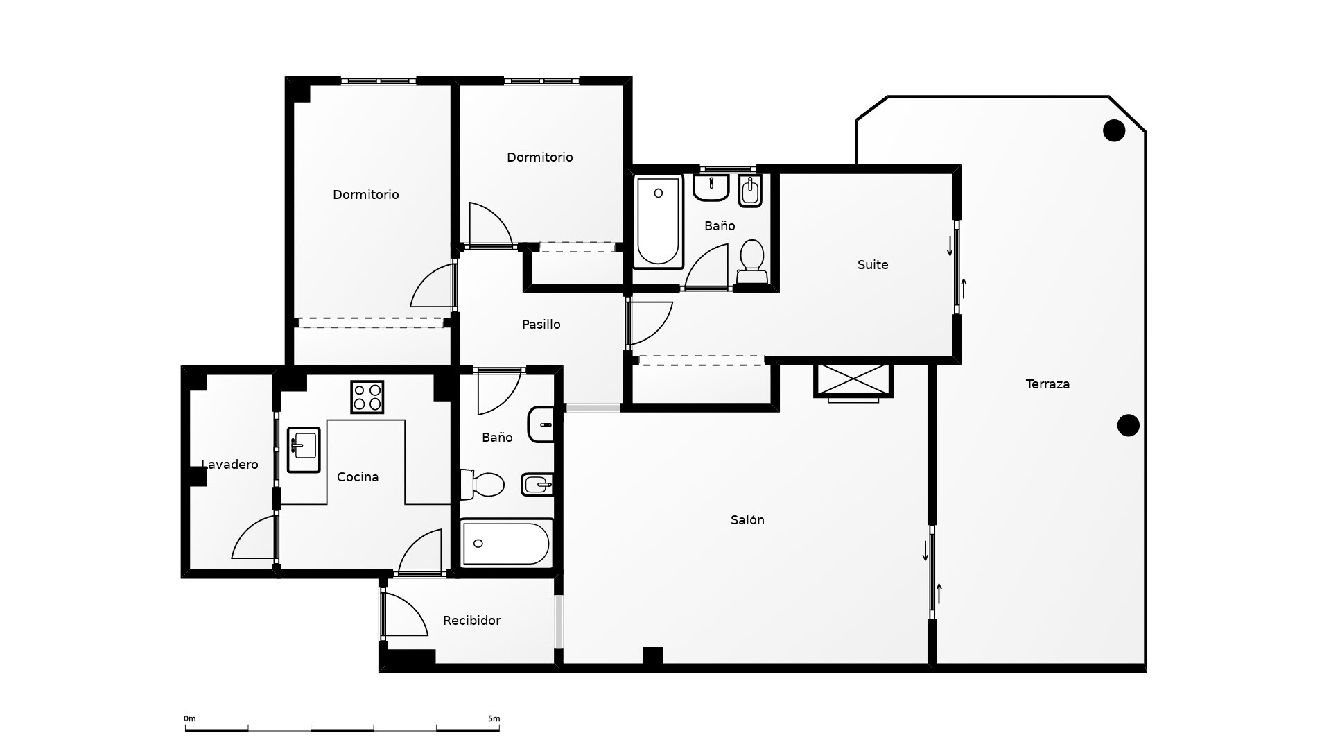
Bute yra trys miegamieji, įskaitant pagrindinį miegamąjį, taip pat du vonios kambariai. Terasa ir balkonas leidžia susisiekti su natūralia komplekso aplinka, mėgautis šviesa ir ramybe bet kuriuo paros metu.
Prie buto priklauso numeruota automobilių stovėjimo vieta – tai didelė pridėtinė vertė tokio lygio gyvenamajame rajone. Bendrose erdvėse yra gražiai sutvarkyti sodai ir baseinas, kuris kviečia atsipalaiduoti ir mėgautis išskirtine aplinka.
Butas yra puikios būklės ir paruoštas įsikėlimui, todėl tai idealus pasirinkimas tiek nuolatinei gyvenamajai vietai, tiek ieškantiems atostogų namų ar kokybiškos investicijos. Jo vieta siūlo privatumą, saugumą ir privilegijuotą aplinką, neaukojant artumo prie patogumų, paplūdimių ir Alteos centro.